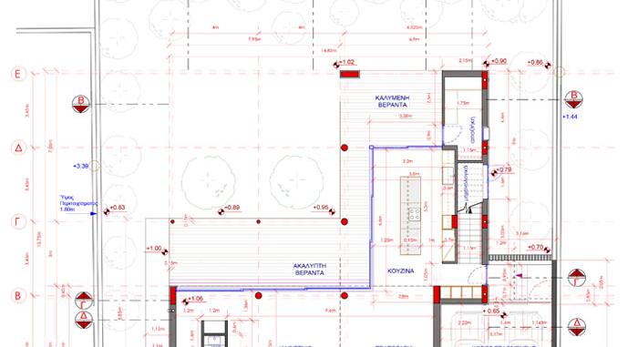
Μοντέρνα μονοκατοικία 4υπν. στην περιοχή Αρχάγγελου:
- σε ολόκληρο οικόπεδο
- με άνετους χώρους
- κατηγορίας Α
- με πλήρη λειτουργία κεντρικής θέρμανσης
- ηλεκτρικά shutter
- φωτοβολταϊκά.
Property Id : 668
Property Size: m2
Rooms: 4
Bedrooms: 4
Bathrooms: 3
Other Features
Air Conditioning & Heating
balcony
Barbeque
Central Heating
Curtains & blinds
Insullation
Interior & garden furniture
Jacuzzi bath tub
Kitchen electrical appliances
Light fittings
ocean view
Parking
Security Alarm System
Shutters
Swimming pool area
Television & Sattelite




















